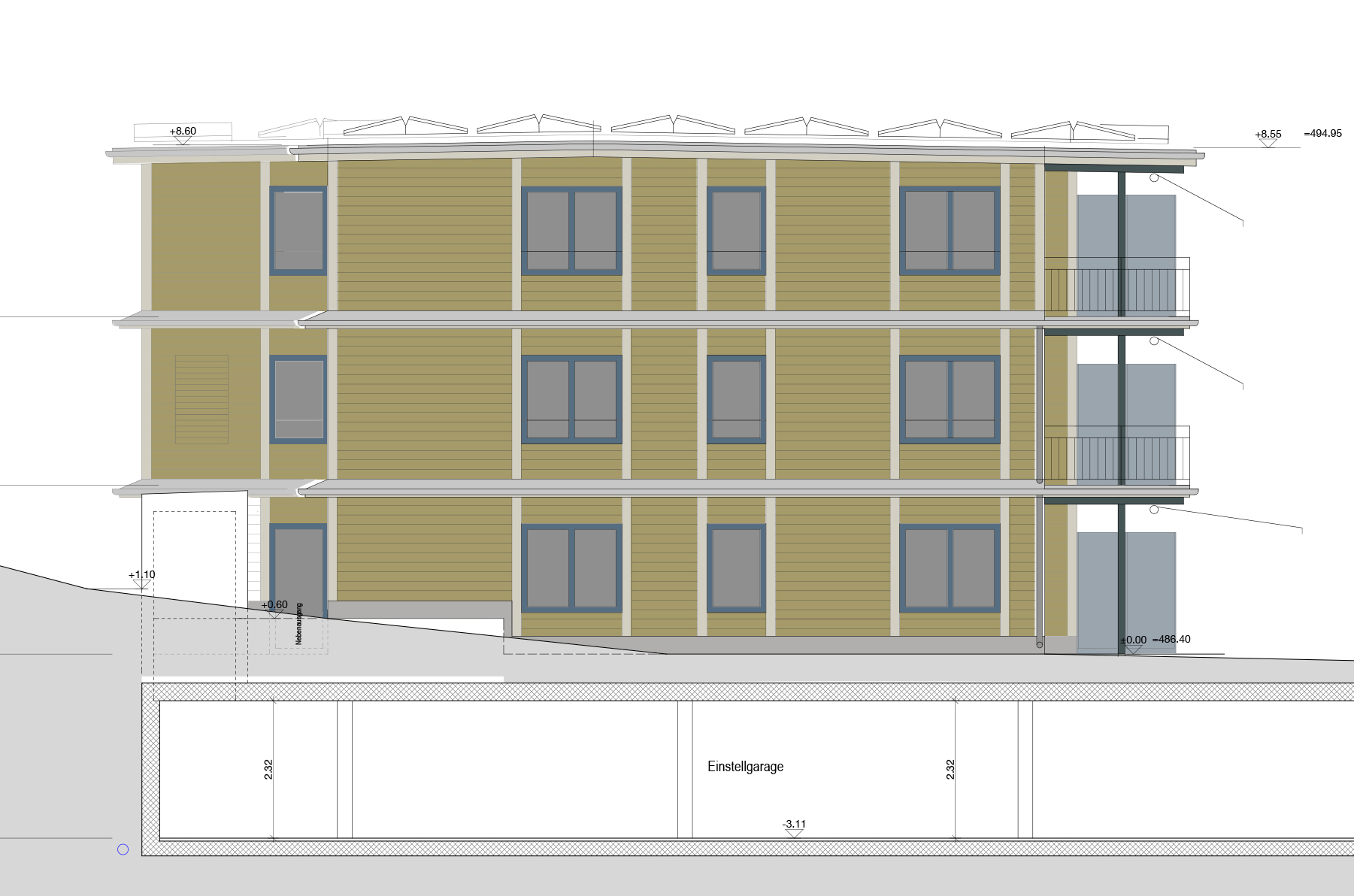
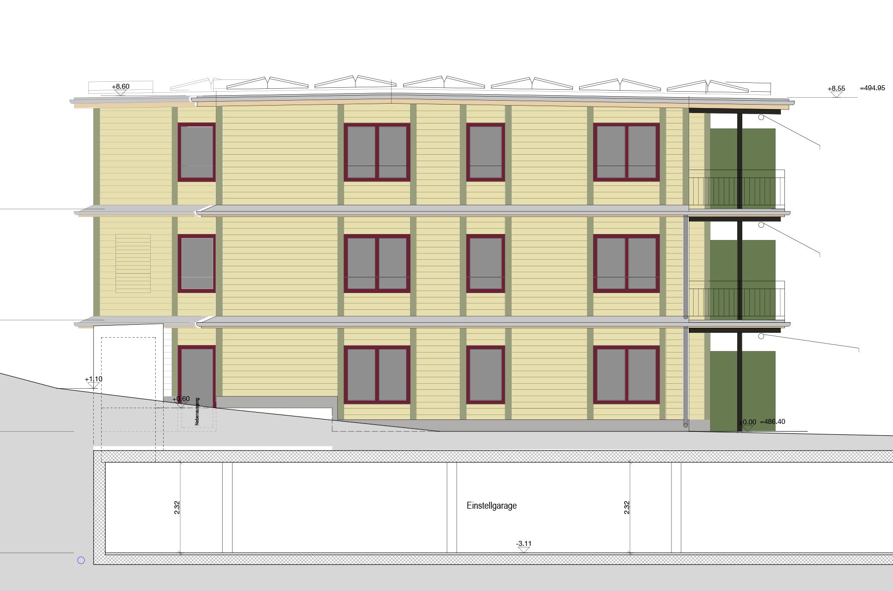
Farbstudien für ein MFH in Bassersdorf
















Farbstudien

Frühling 2019







Hohl&Fry Farbgestalter GmbH - Herbstweg 48b - CH 8050 Zürich - mail@hohlundfry.ch