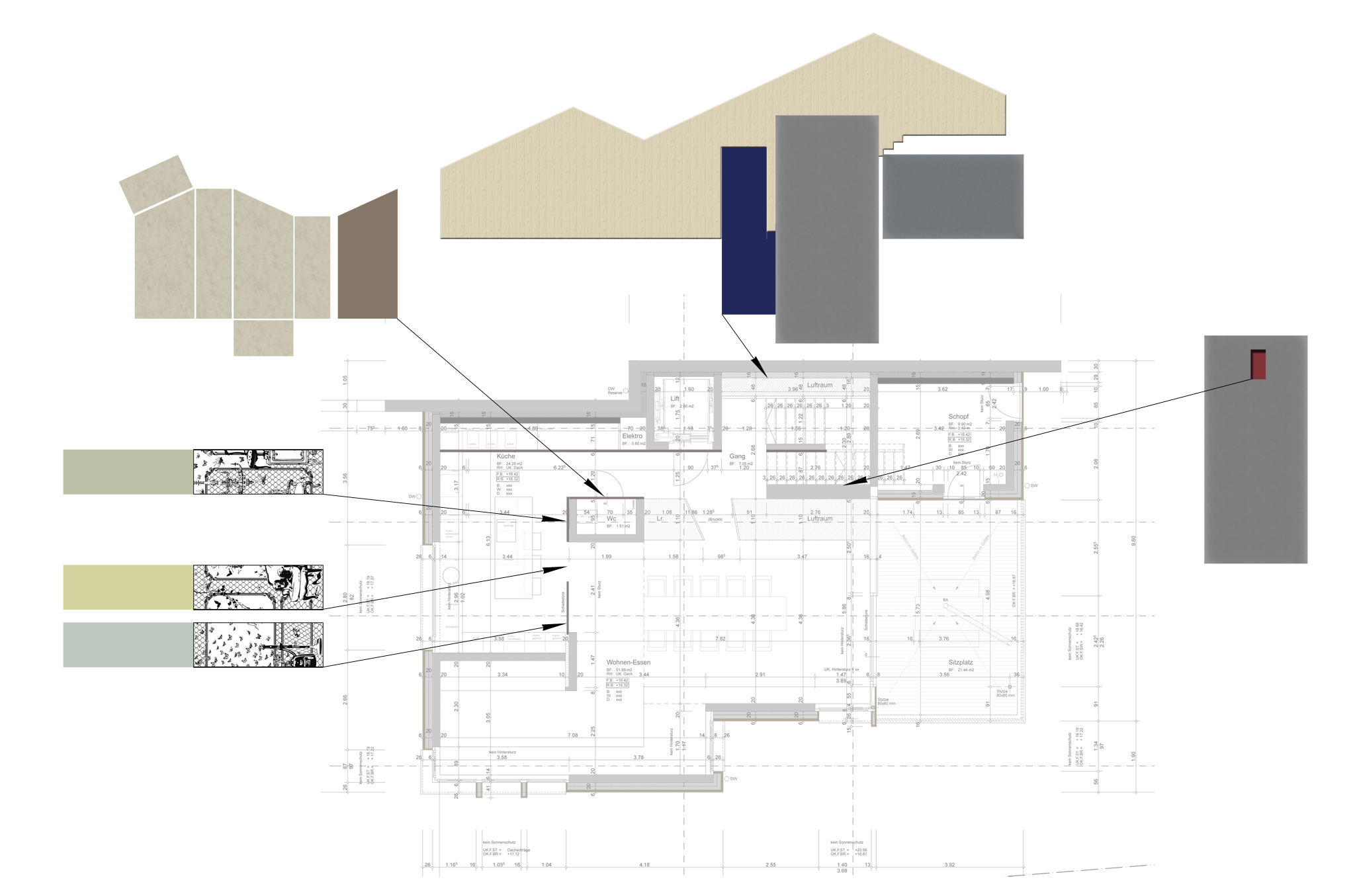
Farbgestaltung für ein EFH in Malbun (FL)
Es dominiert der Sichtbeton als starkes, ehrliches Material. Zusammen mit dem warmen, fugenlosen Boden ergibt dies eine ruhige, geborgene Grundstimmung. Diese Stimmung ergänzten und akzentuieren wir mit zusätzlichen Farben.
Hohl&Fry Farbgestalter GmbH - Herbstweg 48b - CH 8050 Zürich - mail@hohlundfry.ch
