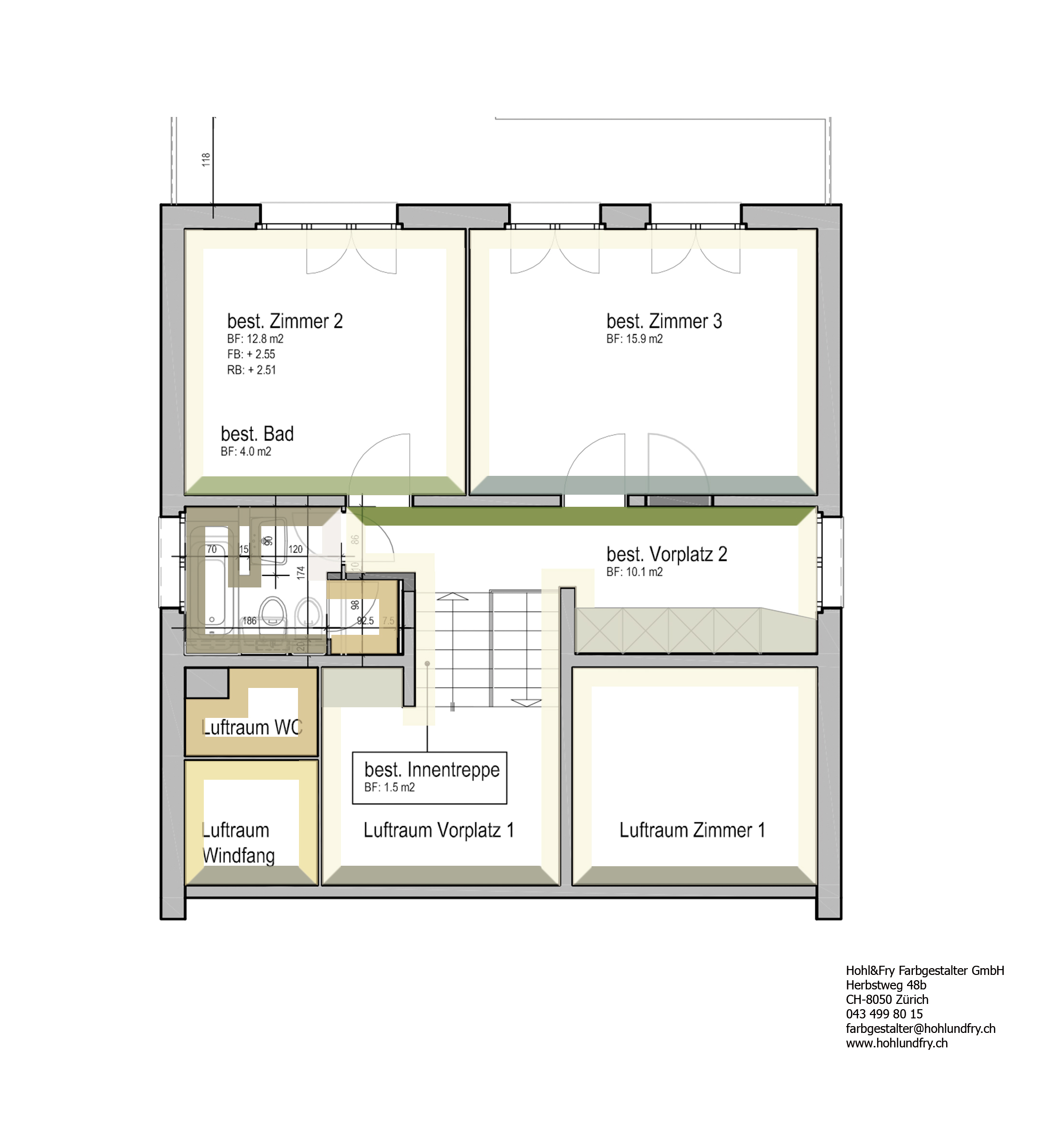
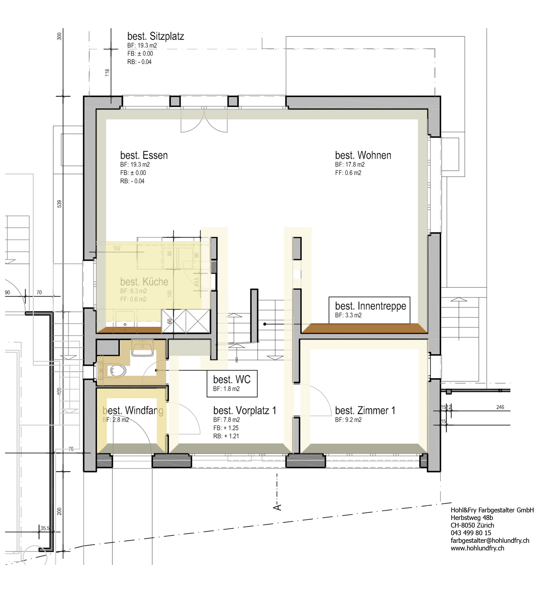
Einfamilienhaus in Frenkendorf

Farbkonzept


Hohl&Fry Farbgestalter GmbH - Herbstweg 48b - CH 8050 Zürich - mail@hohlundfry.ch